+385 91 503 62 10
+386 41 618 055
+385 91 505 7637
Početna
Projekti
O nama
Novosti
Kontaktirajte nas
Početna
Projekti
O nama
Novosti
Kontaktirajte nas
SJ6 APARTMAN 4
1. KAT
50,15 m2
stambeno NKP
Parkirno mjesto PM3
CIJENA: 190.000 EUR
INFO
POŠALJITE UPIT
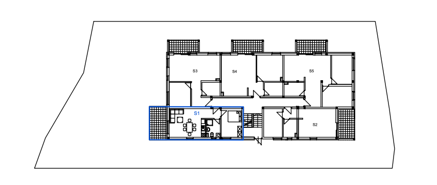
Apartman 4, ukupne površine 50,15 m2, smješten na prvom katu stambeno poslovne zgrade.
SJ6 - APARTMAN 4
neto (m
2
)
korisno (m
2
)
ULAZNI PROSTOR, HODNIK
3,80
3,80
DN. BORAVAK, KUHINJA I BLAGOVAONICA
20,80
20,80
KUPAONICA
5,00
5,00
SPAVAĆA SOBA
12,30
12,30
LOĐA
11,00
8,25
UKUPNO:
52,90
50,15
Ostali stanovi
SJ1 APARTMAN 1
Prizemlje
,
SJ1 APARTMAN 1
Prizemlje
,
Opširnije...
SJ2 APARTMAN 2
Prizemlje
,
SJ2 APARTMAN 2
Prizemlje
,
Opširnije...
SJ3 APARTMAN 3
Prizemlje
,
SJ3 APARTMAN 3
Prizemlje
,
Opširnije...
SJ4 STAN 1
Prizemlje
,
SJ4 STAN 1
Prizemlje
,
Opširnije...
SJ5 STAN 2
Prizemlje
,
SJ5 STAN 2
Prizemlje
,
Opširnije...
SJ6 APARTMAN 4
1. kat
,
SJ6 APARTMAN 4
1. kat
,
Opširnije...
SJ7 APARTMAN 5
1. kat
,
SJ7 APARTMAN 5
1. kat
,
Opširnije...
SJ8 APARTMAN 6
1. kat
,
SJ8 APARTMAN 6
1. kat
,
Opširnije...
SJ9 STAN 3
1. kat
,
SJ9 STAN 3
1. kat
,
Opširnije...
SJ10 STAN 4
1. kat
,
SJ10 STAN 4
1. kat
,
Opširnije...
Ova stranica koristi kolačiće za pružanje boljeg korisničkog iskustva, funkcionalnosti i prikaza sustava oglašavanja. Za nastavak pregleda i korištenja web stranice kliknite OK.
OK
VIŠE